

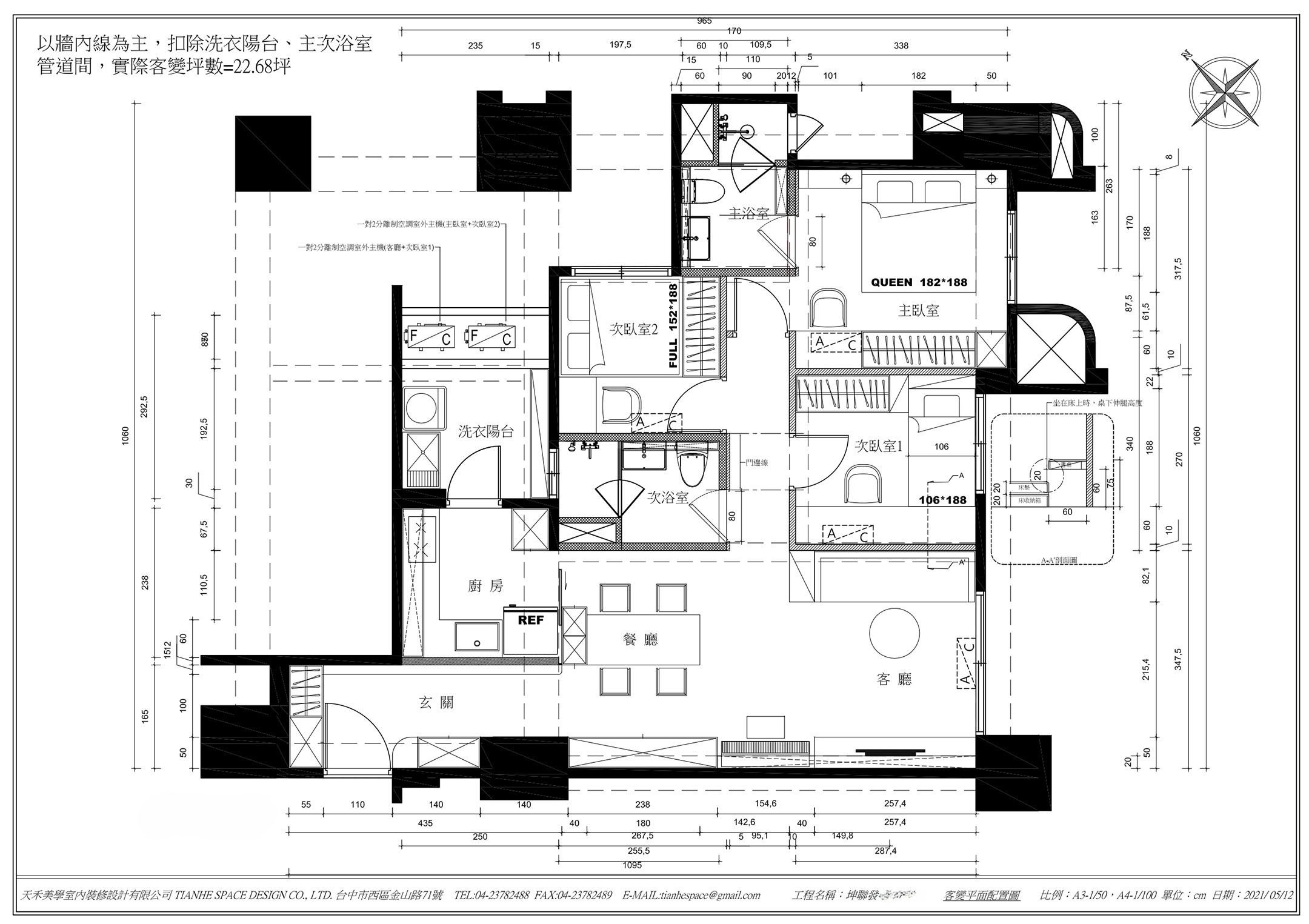
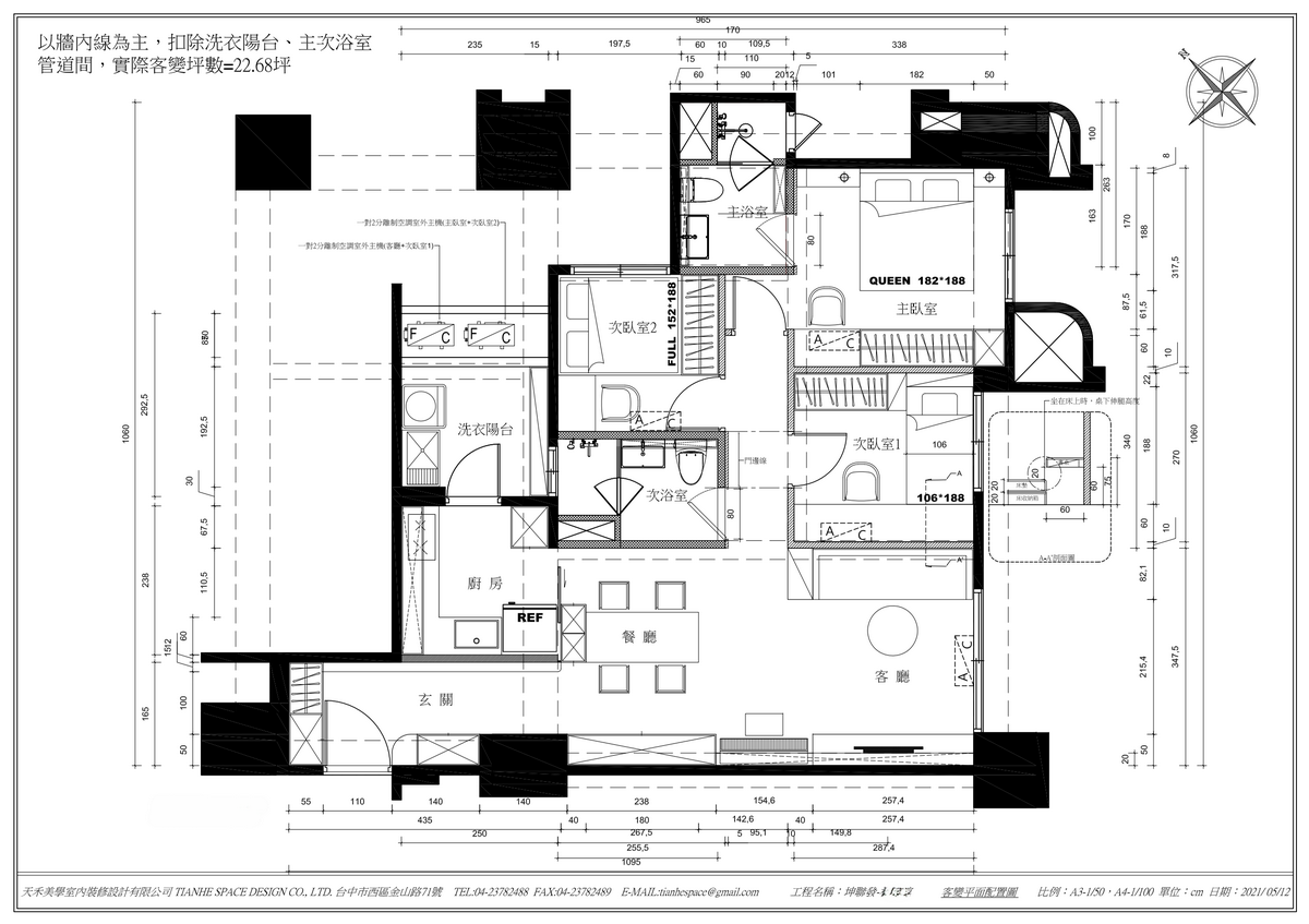
設計重點:
預售屋時客變需求,成員4人(父母+小孩X2),由於屋主夫婦皆為銀行職員,希望能在新購入的房子,讓孩子能有各自獨立的讀書環境。男主人也希望能在客變時,預先規劃無線設備供電。女主人也希望能在更衣的空間,擁有更多實用的收納機能。
原格局為三房兩廳兩衛,從玄關到客廳會經過一段長廊,利用柱子深度規劃一段大量又整齊的收納廊道,並且預先留設相關電力。進入餐廳區,設計一座雙面櫃結合餐桌牆,面對廊道這側,讓進入屋後隨身攜帶的鑰匙、信件,居家維修小工具能有個放置的位置;靠近廚房入口那側,預留咖啡機、小型麵包機的電源;並且利用雙向收納櫃厚度,規劃可隱藏廚房門片於櫃內的餐桌牆,讓廚房油煙不會飄散到客餐廳。
餐廳與客廳為連接在同一個空間的格局,因此擁有一面寬敞的電視牆面可以充分規劃展示與充足收納的機能,面對電視牆,從右至左依序為餐廳收納櫃、鋼琴、電視牆面,依各區需求預先於客變圖面留設如:檯面電源、掃地機電源、電子鋼琴電源、擴大機、主體音箱、聲霸、網路數據機、播放機、電視機,以及預留電源等等,避免未來裝修還要再支出敲打與配電的額外費用。
往中間走廊依序為次浴室、次臥室1、次臥室2、主臥室等空間門片,因應風水門不對門的需求,將次浴室門開口、面盆、馬桶等設備對調到對面牆面,並且將次臥室1門開口下移,不僅達到門不對門,次臥1 門後也可充分規劃收納衣櫃,讓空間利用性提高。
次臥室2規劃為架高式臥榻,為了提高收納性能,下方規劃為滑輪式收納箱,床尾規劃為衣櫃,在其相對應位置留設插座、網路等出線口。
主臥室因為浴室門開口正對著床側,因應注重風水考量的屋主,特將其開口規劃為隱藏式門片,床頭牆面也留設相對影的電源、網路等出線口。面對衣櫃牆面,由右至左依序為梳妝桌、雙人份衣櫃、財物櫃等等,亦留設相對應電源、網路、電視等出線口。
各區域壁掛式冷氣也盡量配置於以不吹到頭為原則,並留設冷氣排水,減少後續排水位置修改等工程風險與費用。

客變後平面計劃圖

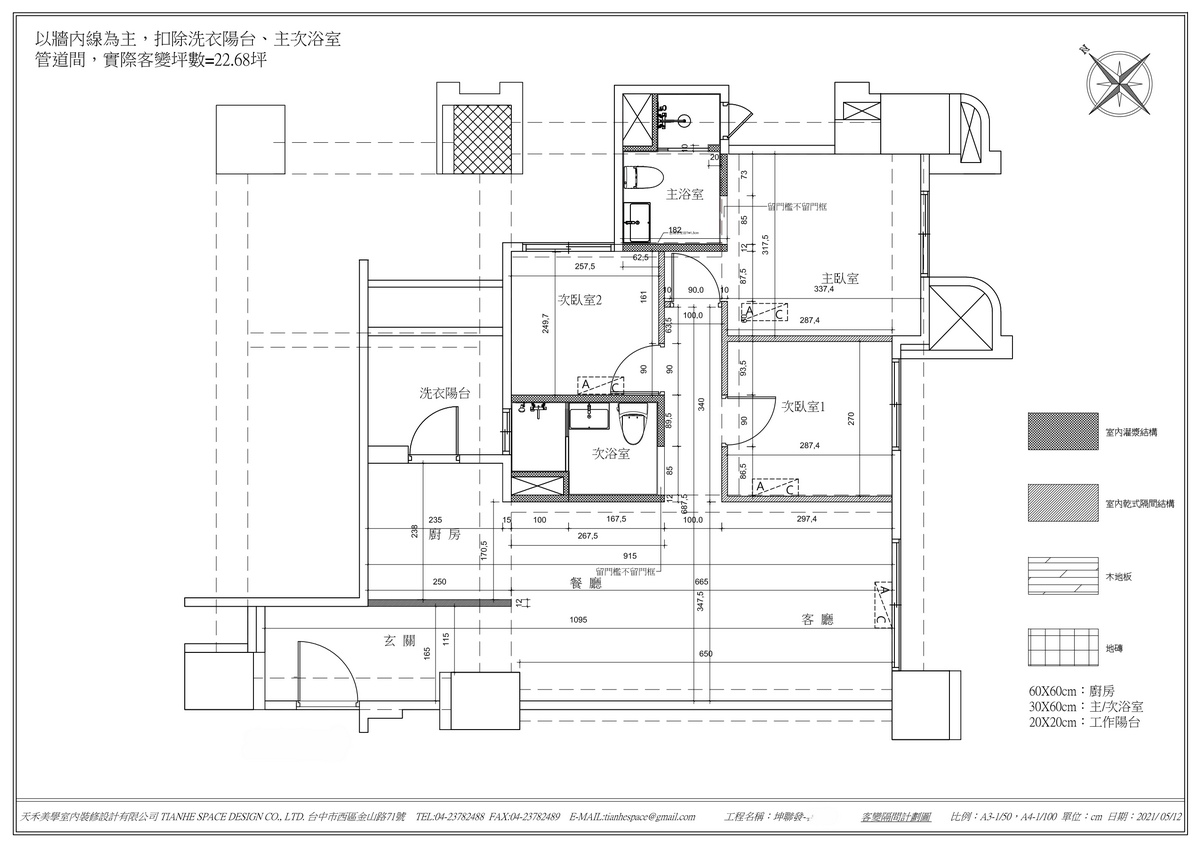
客變後隔間計劃圖

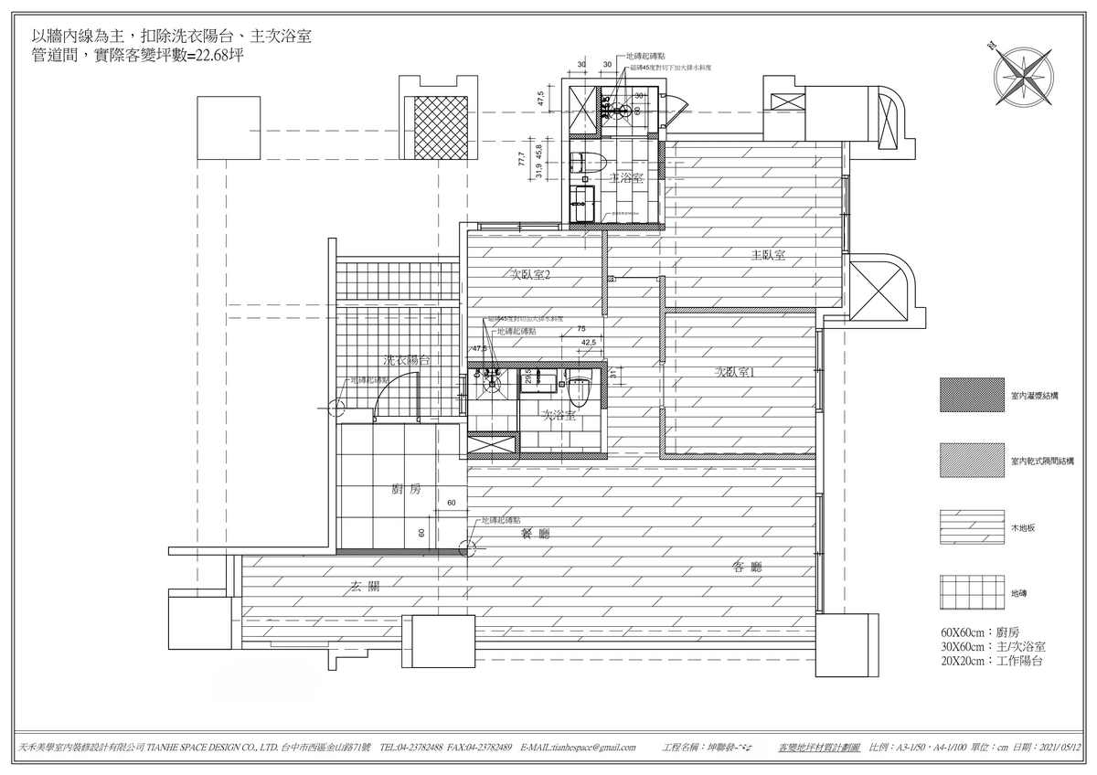
客變後地坪材質計劃圖

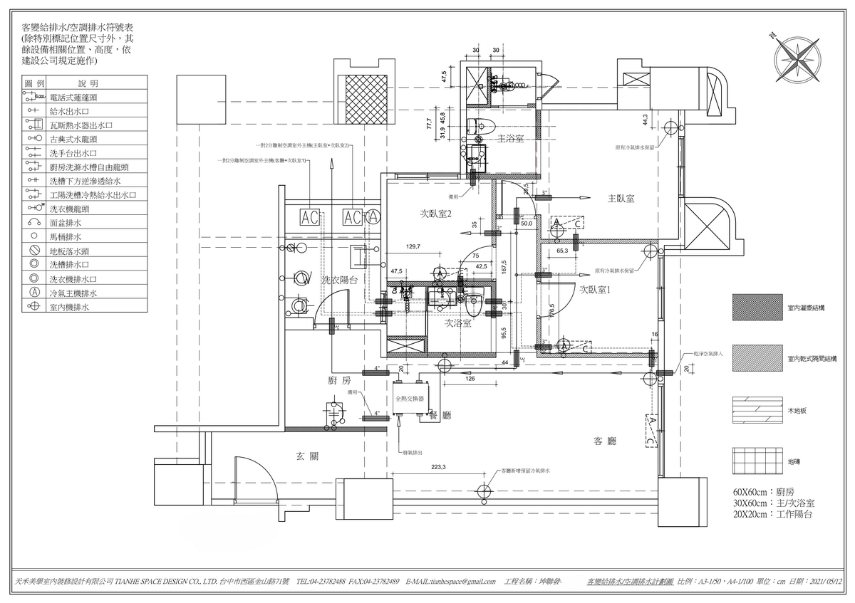
客變後給排水空調排水計劃圖

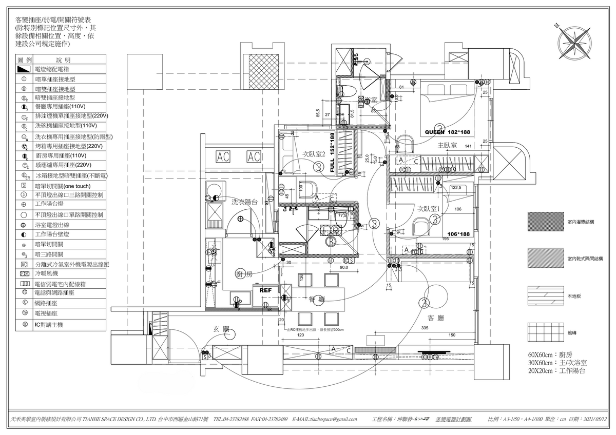
客變後電器計劃圖

交屋前驗屋-餐廳

交屋前驗屋-客廳

交屋前驗屋-中間走廊

交屋前驗屋-次臥室1

交屋前驗屋-次臥室2

交屋前驗屋-主臥室

交屋前驗屋-主浴室

交屋前驗屋-廚具